Building Information Modeling
Apoyamos el desarrollo
de tus proyectos
Somos un equipo con experiencia en la realización de proyectos multidisciplinarios, estamos siempre alertas a los cambios tecnológicos y buscamos siempre alcanzar los objetivos del cliente a través de nuestros servicios.BIM es una metodología de trabajo colaborativo que documenta todo el ciclo de vida de la edificación.
Implementar metodologías BIM permite los siguientes beneficios:
Facilidad en la visualización del proyecto
- Comunicación más eficiente y efectiva
- Coordinación entre los diferentes equipos y disciplinas
- Favorece el análisis y toma de decisiones.
- Herramienta de Diseño. Reduce Errores y Omisiones en los diseños.
- Optimiza Re Procesos
- Optimiza los tiempos de ejecución.
Permite vincular el presupuesto y la programación con el modelo 3D
Definición
Building Information Modeling es una tecnología inteligente que permite reunir y coordinar todos los procesos que tiene una construcción de manera digital.
Building Information Modeling
Modelado de Arquitectura
Proceso


Building Information Modeling
Estructural
Proceso


Building Information Modeling
Modelado de Redes


Building Information Modeling
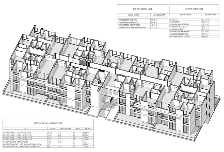
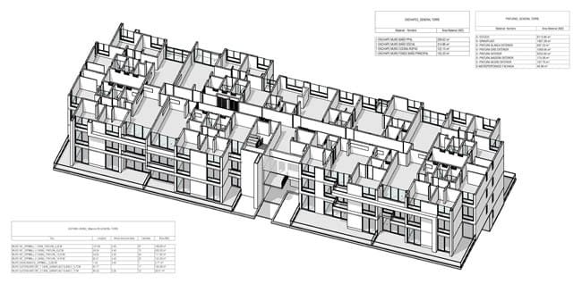
Cantidades de obra


Building Information Modeling
Documentación Técnica

Building Information Modeling
¿Que hemos desarrollado?
Building Information Modeling
¿Que hemos desarrollado?

Proyecto Rioalto, Armenia – Quindío
Building Information Modeling
¿Que hemos desarrollado?

Proyecto Reservas de Milán, Manizales – Caldas
Building Information Modeling
¿Que hemos desarrollado?

Proyecto Pradera Viva, Dosquebradas – Risaralda
Building Information Modeling
¿Que hemos desarrollado?

Proyecto Botanika, Armenia – Quindío
Building Information Modeling
¿Que hemos desarrollado?

Proyecto Arboretum, Armenia – Quindío
Mantente informado de nuestros artículos
Trataremos los datos personales que nos ha facilitado de acuerdo con nuestra política de privacidad.










